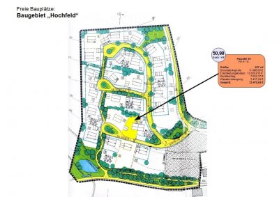
Baugebiet Hochfeld, Rattiszell:
Erschlossen sind 25 Bauplätze, frei ist 1Bauplatz, nämlich die Parzellen 19.
Provisionsfreies Baugrundstück in Rattiszell. Sofort bebaubar; Ideal für die Junge Familie - Preisnachlass von € 1.500,-- je Kind! Der Ort Rattiszell liegt verkehrsgünstig an der B20. Bis nach Straubing oder Cham sind es nur 20 km. Die neue Kindertagesstätte mit Kinderkrippe und auch die Grundschule befinden sich in unmittelbarer Nähe. Ein Lebensmittelgeschäft, eine Metzgerei, ein Friseursalon, die Raiffeisenbank sowie ein Getränkeabholmarkt versorgen Sie mit dem Nötigsten. Ärzte, Apotheke und weitere Einkaufsmöglichkeiten finden Sie in Stallwang, nur 3 km entfernt. Das gesellige Vereinsleben in Rattiszell läßt Sie schnell Anschluß finden.
*) Für die Berechnung der Erschließungskosten wurde eine Geschoßfläche von 350 qm zu Grunde gelegt. Eine exakte Abrechnung erfolgt nach der Bebauung.
Weitere Auskünfte erteilt der 1. Bürgermeister Manfred Reiner Tel. 09964/9857
und die Verwaltungsgemeinschaft Stallwang, Herr Pfeffer,
Tel. 09964/6402-24
Zum Vergrößern auf das Bild klicken.


Vom Baugebiet Hochfeld aus bietet sich eine herrliche Aussicht über das Kinsachtal zum PilgramsbergVoraussetzungen:
- Errichtung eines bezugsfertigen Wohnhauses innerhalb von 5 Jahren ab Grundstückskauf.
- Berücksichtigung finden auch Kinder, die während dieses Zeitraumes geboren werden.
- Bei Nichteinhaltung der Baufrist muss die gewährte Vergünstigung an die Gemeinde nachgezahlt werden.

